サンオーホームの家
SANOH’S HOME
PLAN 03
ひだまり
STANDARD PLAN
家族をやさしく包みこむ、
ひだまりのような暮らし。
家族が集うリビングに、自然の光が降り注ぐひだまりのような空間。
安心と快適を兼ね備えたスタンダードプランは、毎日の暮らしに温かさと安らぎをもたらします。
3つのポイント
POINT OF THREE

ストレスを減らす!
家事ラク動線

制震システム「MIRAIE Σ」
標準装備の高性能住宅

手間と建築コストは
最小限で、納得の家づくり
モデルプラン
MODEL PLAN
PLAN 01
標準仕様
- 内外ダブル断熱
- 断熱玄関ドア(寒冷地仕様)
- トリプルガラス(高性能樹脂サッシ)
- 24時間換気システム(第三種換気)
本体価格 2,387万円 (税込)
| 間取り | 3LDK |
|---|---|
| 1階 | 46.02㎡(13.89坪) |
| 2階 | 48.03㎡(14.50坪) |
| 延床面積 | 94.05㎡(28.39坪) |
<1階>
<2階>
PLAN 02
標準仕様
- 内外ダブル断熱
- 断熱玄関ドア(寒冷地仕様)
- トリプルガラス(高性能樹脂サッシ)
- 24時間換気システム(第三種換気)
本体価格 2,354万円 (税込)
| 間取り | 3LDK |
|---|---|
| 1階 | 46.85㎡(14.14坪) |
| 2階 | 48.86㎡(14.75坪) |
| 延床面積 | 95.71㎡(28.89坪) |
<1階>
<2階>
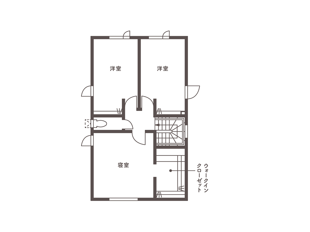
PLAN 03
標準仕様
- 内外ダブル断熱
- 断熱玄関ドア(寒冷地仕様)
- トリプルガラス(高性能樹脂サッシ)
- 24時間換気システム(第三種換気)
本体価格 2,475万円 (税込)
| 間取り | 3LDK |
|---|---|
| 1階 | 51.89㎡(15.66坪) |
| 2階 | 39.75㎡(12.00坪) |
| 吹抜 | 4.97㎡(1.50坪) |
| 延床面積 | 91.64㎡(27.66坪) |
<1階>
<2階>
PLAN 04
標準仕様
- 内外ダブル断熱
- 断熱玄関ドア(寒冷地仕様)
- トリプルガラス(高性能樹脂サッシ)
- 24時間換気システム(第三種換気)
本体価格 2,574万円 (税込)
| 間取り | 3LDK |
|---|---|
| 1階 | 54.65㎡(16.50坪) |
| 2階 | 44.72㎡(13.50坪) |
| 延床面積 | 99.37㎡(30.00坪) |
<1階>
<2階>
PLAN 05
標準仕様
- 内外ダブル断熱
- 断熱玄関ドア(寒冷地仕様)
- トリプルガラス(高性能樹脂サッシ)
- 24時間換気システム(第三種換気)
本体価格 2,695万円 (税込)
| 間取り | 4LDK |
|---|---|
| 1階 | 62.94㎡(19.00坪) |
| 2階 | 51.05㎡(15.41坪) |
| 延床面積 | 113.99㎡(34.41坪) |
<1階>
<2階>
PLAN 06
標準仕様
- 内外ダブル断熱
- 断熱玄関ドア(寒冷地仕様)
- トリプルガラス(高性能樹脂サッシ)
- 24時間換気システム(第三種換気)
本体価格 2,728万円 (税込)
| 間取り | 4LDK |
|---|---|
| 1階 | 61.28㎡(18.50坪) |
| 2階 | 46.37㎡(14.00坪) |
| 吹抜 | 6.62㎡(2.00坪) |
| 延床面積 | 107.65㎡(32.50坪) |
<1階>
<2階>
PLAN 07
標準仕様
- 内外ダブル断熱
- 断熱玄関ドア(寒冷地仕様)
- トリプルガラス(高性能樹脂サッシ)
- 24時間換気システム(第三種換気)
本体価格 2,761万円 (税込)
| 間取り | 4LDK |
|---|---|
| 1階 | 61.81㎡(18.66坪) |
| 2階 | 58.80㎡(17.75坪) |
| 吹抜 | 4.97㎡(1.50坪) |
| 延床面積 | 120.61㎡(36.41坪) |
<1階>
<2階>
PLAN 08
標準仕様
- 内外ダブル断熱
- 断熱玄関ドア(寒冷地仕様)
- トリプルガラス(高性能樹脂サッシ)
- 24時間換気システム(第三種換気)
本体価格 2,893万円 (税込)
| 間取り | 3LDK |
|---|---|
| 1階 | 62.94㎡(19.00坪) |
| 2階 | 56.31㎡(17.00坪) |
| 吹抜 | 6.62㎡(2.00坪) |
| 延床面積 | 119.25㎡(36.00坪) |
<1階>
<2階>
PLAN 09
標準仕様
- 内外ダブル断熱
- 断熱玄関ドア(寒冷地仕様)
- トリプルガラス(高性能樹脂サッシ)
- 24時間換気システム(第三種換気)
本体価格 2,937万円 (税込)
| 間取り | 4LDK |
|---|---|
| 1階 | 44.14㎡(13.32坪) |
| 2階 | 46.37㎡(14.00坪) |
| 3階面積 | 46.37㎡(14.00坪) |
| 延床面積 | 136.88㎡(41.32坪) |
<1階>
<2階>
<3階>
このようなお悩みはございませんか!?
- リビングに吹き抜けがほしい!
- 2階の個室を2つつなげて広い子ども部屋に
したい! - 収納スペースを広げたい!